Loftas Vilniuje


Šio lofto interjero projektas sukurtas pagal užsakovui artimą tematiką – Indijos kultūrą, spalvas ir dvasingumą. Pagrindinė idėja – sukurti unikalią, charakteringą ir kartu jaukią gyvenamąją erdvę, atspindinčią asmenybę ir gyvenimo būdą. Tai tarsi asmeninė oazė mieste, kurioje susipina estetika, funkcionalumas ir vidinė ramybė.
Lofto interjere dominuoja ryškios, tačiau tarpusavyje derančios spalvos, šiltų tonų natūralios medžiagos – medis, linas, molis. Aplinką papildo išraiškingos tekstūros ir detalės, įkvėptos Indijos kultūros – audiniai, šviestuvai, meno kūriniai.
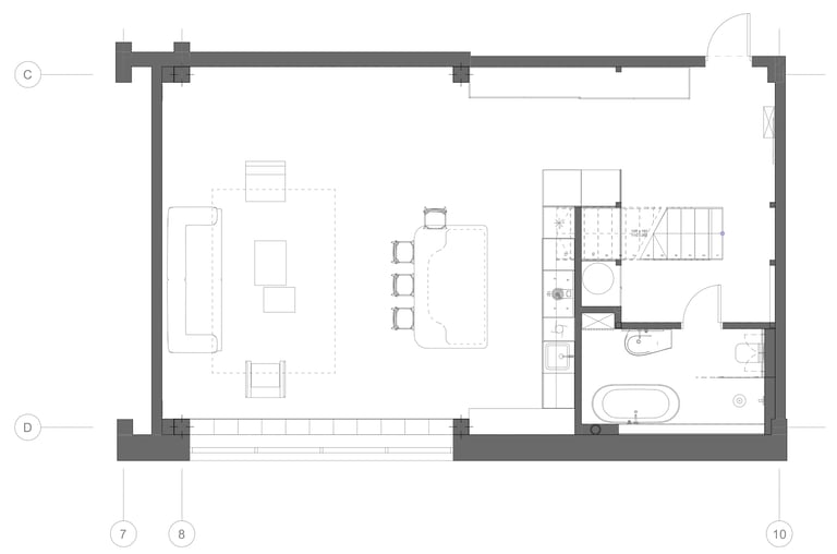
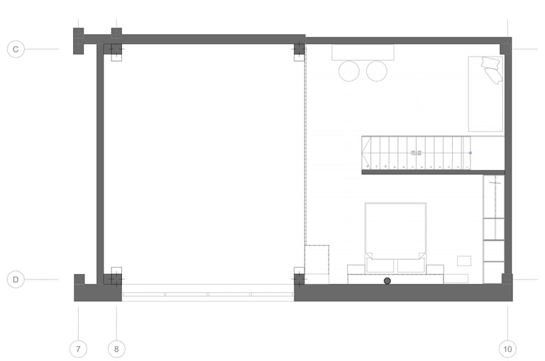
Erdvė suplanuota universaliai – tai ne tik gyvenamoji zona, bet ir kūrybos erdvė, tinkama filmavimui, jogai, meditacijoms ar jaukiems vakarams su artimaisiais. Kiekviena zona – nuo poilsio iki darbo ar bendravimo – kurta su mintimi apie lankstumą ir emocinį komfortą.















