Butas Markučiuose


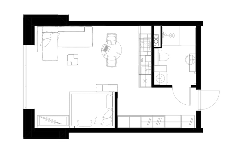
Nedidelės kvadratūros studentiškame bute apgalvotai sutalpinta viskas, ko gali prireikti patogiam gyvenimui. Interjerą pagyvina žaismingi akcentai, kurie suteikia erdvėms individualumo ir energijos. Mažas kambarys funkcionaliai suskirstytas zonomis – jis tarnauja tiek kaip svetainė dienos metu, tiek kaip jaukus miegamasis vakarais.





















